Our internal powder coat timber staircases take your instant staircase kits to a new level. Choose from four powder coating colour options to sit alongside your timber treads to perfectly compliment your interiors. A great staircase kit for people who prefer not to have an industrial steel look to their spiral staircase.
Description
column 1
Internal Powder Coated Timber Spiral Staircase Kit
The powder coating process adds an extra layer of customisation. Available in 4 colors, homeowners can choose a look that complements their existing decor. Additionally, the powder coat finish is not just about aesthetics; it provides a durable, resistant surface that can withstand wear and tear over time. These stair kits feature two tread sizes to meet various building regulation requirements. This kit is specifically designed for easy installation without the need for specialized tools.
column 2
Our powder-coated timber staircases elevate your instant staircase kits. Select from four powder coating colors that complement your timber treads and enhance your interiors. This staircase kit is ideal for those who want to avoid the industrial steel look in their spiral staircase. The powder-coated steel spiral staircase is galvanized before coating, ensuring protection against corrosion and making the external staircase virtually maintenance-free.
Technical information
column 1
Material: 3mm steel, galvanized
Hot dipped galvanized then powder coated
Our DIY spiral staircase kits for external use are hot dip galvanized before they receive a powder coat which means they are long lasting and can stay maintenance free for decades.
Powder coat colour options
We offer our powder coat spiral stairs kit in the following colours:
RAL 7015 Slate Grey
RAL 7016 Anthracite Grey
RAL 9005 Jet Black
RAL 9010 Pure White
Treads: Are mild steel and come in two sizes 750mm radius and 950mm radius with standard 120mm front and back fold down in a non-slip tread plate pattern.
Balustrade: 22mm diameter balusters that are slotted to accommodate the aluminium coil handrail.
Handrail: 40mm x 6mm aluminium coil with PVC slotted handrail to go on top.
Rectangular landing:
With 750 tread radius: 814mm x 944mm
With 950 tread radius: 1014mm x 1144mm
Boss:
101mm diameter tread boss fitted over an 89mm diameter modular steel core pole.
All the steel components of the stair will be hot dip galvanised before powder coating for weather resistance. Hardware like the nuts and bolts will be zinc plated to avoid corrosion.
Technical specification document
Our detailed technical specification document with landing details can be downloaded here.
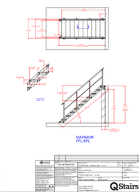
Technical layout drawings
We also have technical layout drawings that show where you will step on and step off our spiral staircase depending on the height, landing and staircase direction you choose.
column 2
q-technical-specification-powder
technical-layout-download
FAQs
faq
Installation
column 1
Our step by step instruction manual on how to build a spiral staircase can be found here.
It gives details on what tools you will need, what you need to consider before going ahead with the install and guidance on how to install the powder coat spiral stairs kit, so it remains building regulations complaint.
You may also find our technical layout diagrams helpful for working out where you will step on and step off the spiral stair.















