Our external spiral staircase kit makes a great garden feature or practical escape or access staircase option. Designed specifically for outdoor use it is robust and durable.
Description
column 1
Galvanised Steel External Spiral Staircase Kit
Our external spiral staircase kit makes a great garden feature or practical escape or access staircase option. Designed specifically for outdoor use it is robust and durable. Our galvanized exterior spiral staircase kit is designed for use outside. With its robust and durable spiral design, this staircase not only saves space but also serves as a stunning garden feature. It can be installed for access to gardens or courtyards, as well as for accommodation or fire escapes. Available in two tread sizes to meet building regulation requirements, this external staircase kit is specifically designed for easy self-installation and requires no specialised tools, making the process of adding a spiral staircase simpler than ever.
column 2
Our Qstairs outside spiral staircase kits are manufactured in our state-of-the-art factory by experienced time-served fabricators and welders to ISO quality standards.
These staircase kits have a galvanized finish to protect the steel from corrosion and helps to keep the external staircase maintenance free.
Technical information
column 1
Material: 3mm steel, galvanized
Hot dipped galvanized:
Our DIY spiral staircase kits for external use are hot dip galvanized which means they are long lasting and can stay maintenance free for decades.
Hot dip galvanising is when clean steel is immersed into molten zinc, a series of zinc-iron alloy layers are formed by a metallurgical reaction between the iron and zinc, providing a robust coating which is an integral part of the steel.
All our galvanised spiral stair kits are hot dipped in accordance with BS EN ISO 9001:2015 and under the control of ISO 9001.
Treads: Are mild steel and come in two sizes 750mm radius and 950mm radius with standard 120mm front and back fold down in a non-slip tread plate pattern.
Balustrade: 22mm diameter balusters that are slotted to accommodate the aluminium coil handrail.
Handrail: 40mm x 6mm aluminium coil with PVC slotted handrail to go on top.
Rectangular landing:
With 750 tread radius: 814mm x 944mm
With 950 tread radius: 1014mm x 1144mm
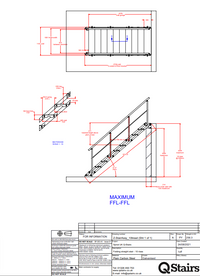
Technical specification document
Our detailed technical specification document with landing details can be downloaded here: steel spiral staircase technical specification.
Technical layout drawings
We also have technical layout drawings that show where you will step on and step off our spiral staircase depending on the height, landing and staircase direction you choose.
column 2
q-technical-specification
technical-layout-download
FAQs
faq
Installation
column 1
Our step by step instruction manual on how to build a spiral staircase can be found here.
It gives details on what tools you will need, what you need to consider before going ahead with the install and guidance on how to install the kit stairs, so it remains building regulations complaint.
You may also find our technical layout diagrams helpful for working out where you will step on and step off the spiral stair.











